Главная » Идеи для талантливых » Шкаф купе своими руками: фото, чертежи и советы для создания идеального гардероба

Шкаф купе своими руками: фото, чертежи и советы для создания идеального гардероба


Шкаф купе - это отличное решение для оптимальной организации пространства в вашей комнате. В этой статье вы найдете фото, чертежи и полезные советы по созданию шкафа купе своими руками.


Выберите подходящий дизайн шкафа купе, учитывая размеры комнаты и ваши потребности.

ШКАФ КУПЕ своими руками. Как заказать и собрать. ДЕШЕВЛЕ чем Леруа Мерлен и Икеа.

Не забудьте сконструировать внутреннюю систему хранения для удобного размещения одежды, обуви и аксессуаров.

Почему НЕ СТОИТ брать шкафы-купе? Разбираем всё по полочкам

Используйте качественные материалы при изготовлении шкафа, чтобы он был надежным и долговечным.

Не ВЫБРАСЫВАЙ остатки ЛАМИНАТА!!! Посмотри, что можно fond-ustu.ru

Обратите внимание на правильное использование пространства в шкафу: добавьте полки, ящики, штанги и другие элементы.

Стильный шкаф своими руками без антресоли до потолка - Делай сам - Мебель из ДСП своими руками

При монтаже шкафа купе используйте специальные крепежные элементы, чтобы обеспечить его устойчивость и безопасность.

Не покупай мебельные жалюзийные двери. 100% способ делать их самому, без специнструмена и за копейки

Не забывайте о пропорциях и гармонии дизайна шкафа с общим интерьером комнаты.

РЕМОНТ КВАРТИРЫ В НОВОСТРОЙКЕ. ДИЗАЙН ШКАФА-КУПЕ СВОИМИ РУКАМИ #064

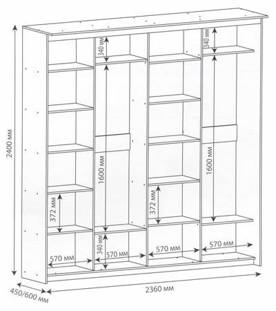
При создании чертежей шкафа купе учтите не только габариты, но и функциональность его компонентов.

Шкаф купе как рассчитать деталировку. Деталировка мебели. Мебель своими руками

Перед началом работы изучите инструкции и рекомендации по монтажу шкафа купе, чтобы избежать ошибок и повреждений.

СДЕЛАЙ И МНЕ ДВЕ! Соседи несут трубы, узнали про КРУТУЮ ИДЕЮ!

Шкаф купе своими руками чертежи

Не забудьте о покрытии поверхности шкафа защитным слоем лака или краски, чтобы сохранить его привлекательный внешний вид.

Шкаф купе своими руками. Очень подробно.

Постепенно собирайте и устанавливайте шкаф, следуя строго пошаговой инструкции, чтобы избежать непредвиденных проблем и ошибок.