Главная » Идеи для талантливых » Теплообменник для палатки: как сделать его самостоятельно и обеспечить комфортную температуру в любую погоду

Теплообменник для палатки: как сделать его самостоятельно и обеспечить комфортную температуру в любую погоду


Хотите организовать надежную систему отопления в палатке? Узнайте, как создать теплообменник своими руками с помощью полезных советов и готовых чертежей. Это позволит вам наслаждаться теплом и комфортом даже в холодные ночи, когда на улице становится холодно.


Выберите подходящий материал для теплообменника, такой как медь или алюминий.

Теплообменник в палатку своими руками.

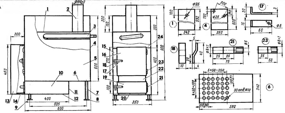
Используйте чертежи при создании теплообменника, чтобы гарантировать правильное расположение трубок и обеспечить эффективный обмен тепла.

Теплообменник из алюминия в палатку для зимнего отдыха. Сделай сам, своими руками.

Контролируйте температуру в палатке с помощью регулировки входящей и исходящей воды в теплообменнике.

Отличный обогрев палатки за копейки! Теплообменник для зимней рыбалки! Сделает каждый за пол часа!

Обязательно проверьте герметичность теплообменника перед использованием, чтобы избежать утечек и повреждений.

#Теплообменник своими руками, теплообменник с перегородками

Установите теплообменник на надежную подставку или кронштейны, чтобы избежать его падения и повреждений.

Теплообменник своими руками. Тест теплообменника на рыбалке. обогрев зимней палатки.

Важно учесть размеры палатки и потребности в отоплении при выборе размера и мощности теплообменника.

Пошагово! Как сделать теплообменник в палатку своими руками

Периодически чистите теплообменник от накипи и других загрязнений для поддержания его эффективности.

ЗАПРЕЩЕННОЕ БЕСПЛАТНОЕ ОТОПЛЕНИЕ СМОТРИТЕ ПОКА НЕ УДАЛИЛИ

Регулярно проверяйте подключения и трубки теплообменника на предмет возможных утечек или повреждений.

Теплообменник. Отопление палатки зимой на рыбалке.

ЗАБУДЬ про холод и УГАРНЫЙ ГАЗ! Безопасный и ЭФФЕКТИВНЫЙ теплообменник в палатку на зимней рыбалке.

Используйте теплоизоляцию для минимизации потери тепла и повышения эффективности работы теплообменника.

Отопление из огнетушителя! За такую самоделку дрались все геологи в холодной тайге.

Не забывайте о безопасности при использовании теплообменника, следите за правильной установкой и избегайте возможных опасностей.