Главная » Лайфхаки по стирке » Какой стиральный порошок для септика Топас подойдет? 10 советов для правильного выбора

Какой стиральный порошок для септика Топас подойдет? 10 советов для правильного выбора


Статья предоставляет детальные советы по выбору подходящего стирального порошка для септического Топаса. Изучите наш топ-10 рекомендаций для эффективного и безопасного использования.


Избегайте использования стирального порошка с содержанием вредных химических компонентов, таких как хлор и фосфаты. Они могут негативно влиять на работу септика Топас.

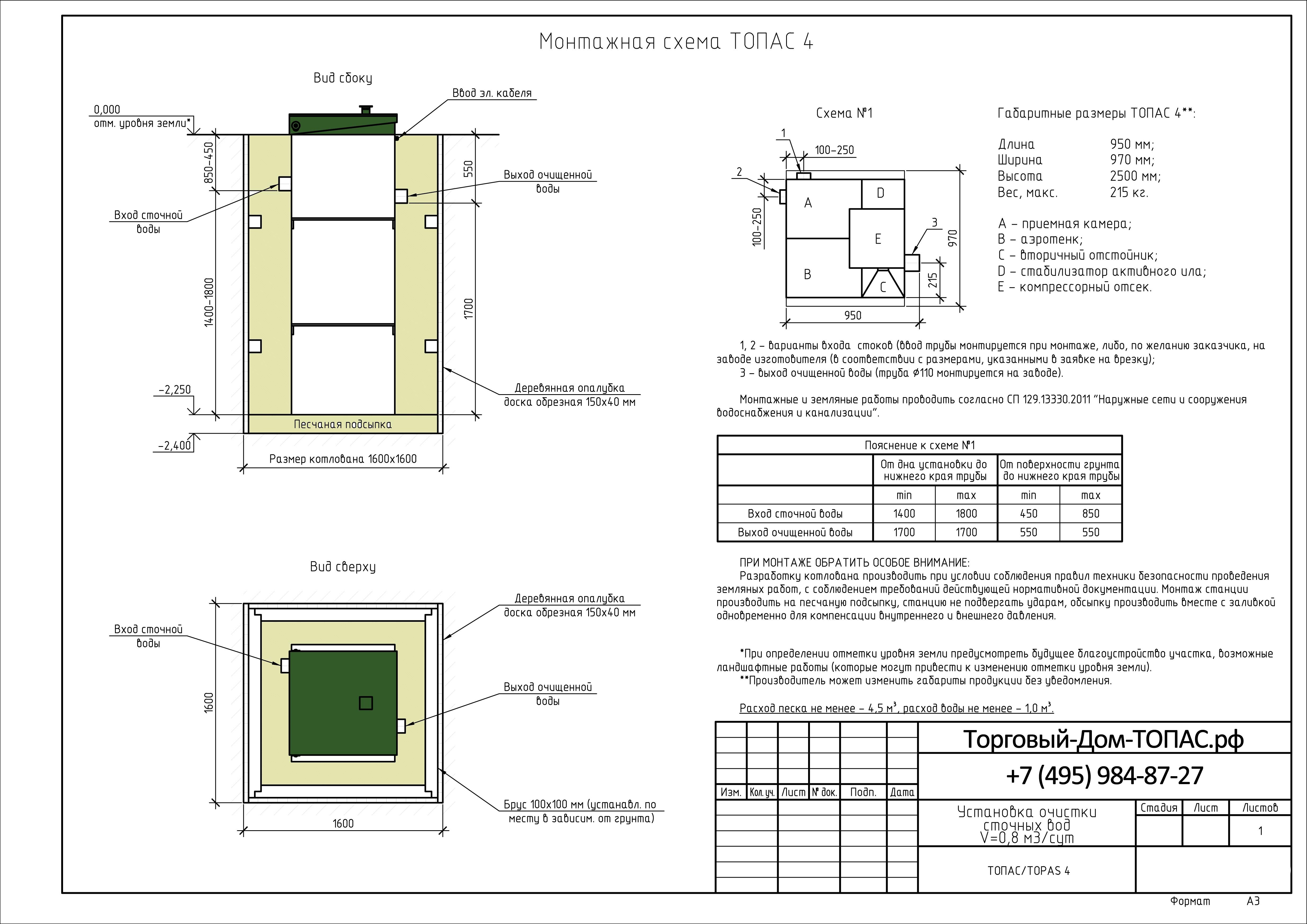
Правильная работа Топас

Выбирайте стиральный порошок, который специально разработан для использования с септическими системами. Такие порошки обычно более безопасны для окружающей среды и меньше загружают септик.

Отзыв владельца ТОПАС

Оптимальный вариант - стиральный порошок с низким уровнем пены. Пена может проникнуть в септик и вызвать его переполнение или засорение.

Биоразлагаемые стиральные порошки для септиков. Обзор

Обратите внимание на наличие биоразлагаемых компонентов в составе стирального порошка. Они помогут септику разлагать загрязнения, что повысит его эффективность.

МОЖНО ПИТЬ ВОДУ ИЗ МОЕЙ СКВАЖИНЫ? - КАК В МГУ АНАЛИЗИРУЮТ ВОДУ, ПОЧВУ, РАСТЕНИЯ - ОТ СОХИ ДО СОХИ

Регулярно следите за количеством используемого стирального порошка. Использование слишком большого количества порошка может негативно сказаться на работе септика Топас.

5 мест где нельзя ставить септик на участке. И вот почему!

Перед покупкой стирального порошка, ознакомьтесь с отзывами других пользователей. Это поможет выбрать наиболее подходящий вариант для вашего септика Топас.

Какими моющими средствами можно пользуетесь для септиков и автономных канализаций. Hiddo

При покупке стирального порошка обратите внимание на его консистенцию. Жидкий стиральный порошок может быть более безопасным и легче растворяется в воде, что снижает риск засорения септика.

Что нельзя сливать в автономную канализацию? - Запрещённые вещества для септика

Избегайте использования стирального порошка с добавленными отдушками или красителями. Они могут содержать вещества, которые негативно воздействуют на работу септического Топаса.

Что нельзя сливать в септик. Основные правила эксплуатации септика. SeptikEco

Периодически проводите профилактическую чистку септика Топас, чтобы избежать накопления загрязнений и улучшить его эффективность. Стиральный порошок должен быть дополнением к правильному обслуживанию септической системы.

Простой СЕПТИК на даче БЕЗ ОТКАЧКИ и БЕЗ АССЕНИЗАТОРА уже 20 лет

Если вы сомневаетесь в выборе стирального порошка для септика Топас, проконсультируйтесь с производителем системы или специалистом в данной области. Они смогут дать вам конкретные рекомендации для вашего конкретного случая.

Что нельзя сливать в септик ТОПАС?