Главная » Поддержка порядка » Важные аспекты функционирования промышленного парогенератора: что нужно знать

Важные аспекты функционирования промышленного парогенератора: что нужно знать


Узнайте, как действует промышленный парогенератор и какие принципы работы лежат в его основе. Полезные советы помогут вам использовать его наиболее эффективно и безопасно.


Проверьте уровень воды: перед включением парогенератора убедитесь, что в нем достаточно воды для работы.

Принцип работы парогенератора

Установите нужную температуру: выберите оптимальный режим работы парогенератора, учитывая требования вашей задачи.

Обзор парогенератора Silter Super Mini 2002 Professional на 2 л. ВТО для всех видов тканей

Очистите парогенератор: регулярно проводите профилактику и удаление накипи, чтобы поддерживать его работоспособность.

Как это работает? - Парогенератор

Используйте правильное оборудование: для работы с промышленным парогенератором выбирайте специальные аксессуары и инструменты.

На что способен самодельный парогенератор

Бережите энергию: следите за тем, чтобы парогенератор работал в экономичном режиме и не потреблял избыточное количество энергии.

Как правильно пользоваться парогенератором?

Соблюдайте меры безопасности: никогда не открывайте крышку парогенератора во время работы и используйте защитные приспособления.

В чем отличие парогенератора от парового котла?

Изучите рекомендации производителя: перед началом работы с парогенератором обязательно прочтите и ознакомьтесь с инструкцией от производителя.

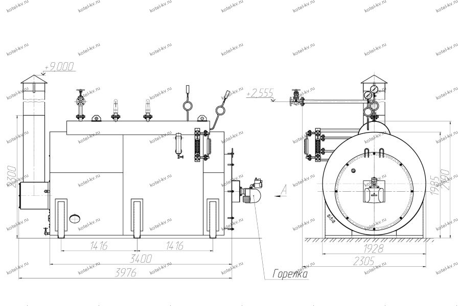
Промышленный парогенератор

Регулярно обслуживайте парогенератор: проводите плановые технические проверки и сервисное обслуживание, чтобы предотвратить возможные поломки и сбои в работе.

Паровые системы ЭНТРОРОС

Мощный генератор ПАРА для fond-ustu.ru и проверка

Следите за качеством воды: используйте только чистую или предварительно очищенную воду для заполнения парогенератора.

Устройство парогенератора «ПАР» - основные части парогенератора – Купить парогенератор в Станкомаш

Перед хранением отключите парогенератор: перед выключением устройства обязательно отключите его от питания и дайте ему остыть.